Services Offered
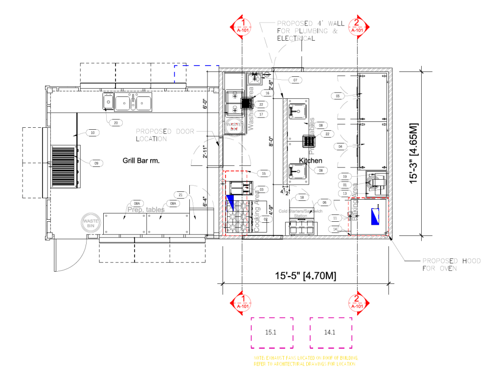
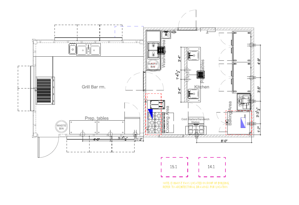
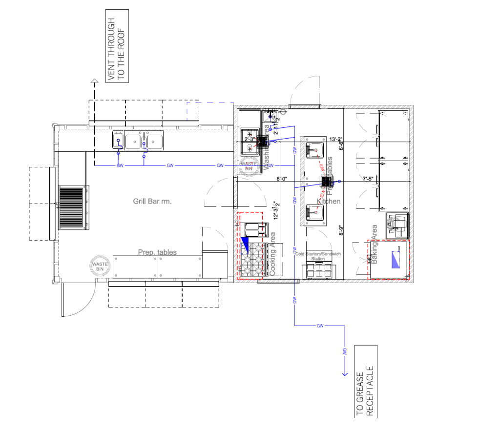
RESS offered a full set of drawings including MEP (Mechanical, Electrical & Plumbing) plans.





Restaurant Equipment Sales And Services Ltd.
Commercial Kitchen Equipment
RESS offered a full set of drawings including MEP (Mechanical, Electrical & Plumbing) plans.




